A SME

Projeto 100 Anos

Uma celebração ao legado da SME e à construção do futuro da engenharia, rumo ao centenário da nossa instituição.

Nosso Projeto

A SME irá abrigar o Centro de Referência das Engenharias de Baixo Carbono, um espaço dedicado a fomentar o desenvolvimento e a aplicação de tecnologias sustentáveis para impulsionar a economia de baixo carbono.

Objetivos

Acelerar soluções de engenharia para reduzir emissões e atender aos acordos climáticos.

Criar novas oportunidades para engenheiros e empresas na economia verde.

Atualizar e capacitar profissionais, promovendo inovação tecnológica.

Fortalecer a competitividade de empresas e equipes de engenharia.

Linhas de Ação

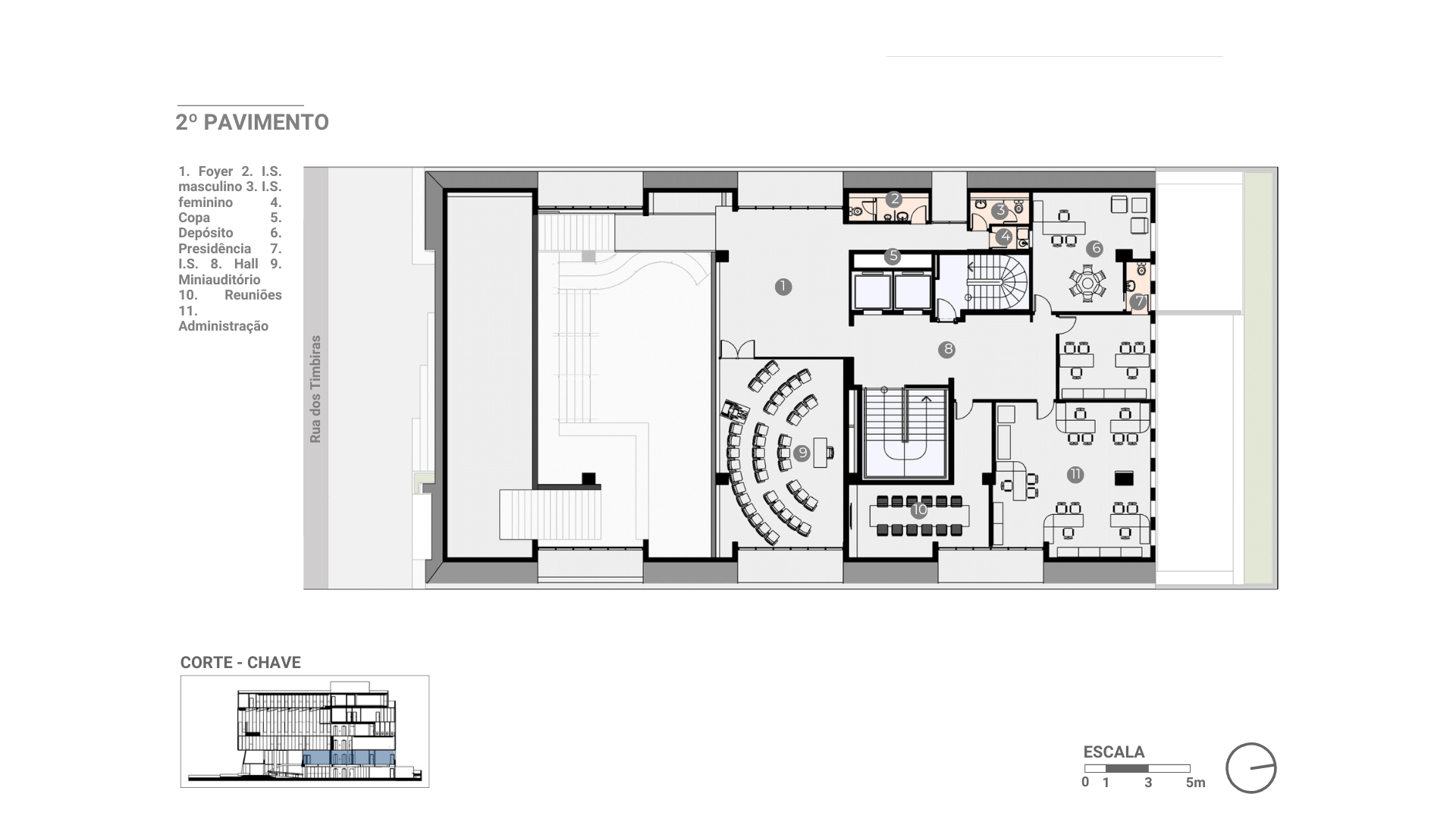
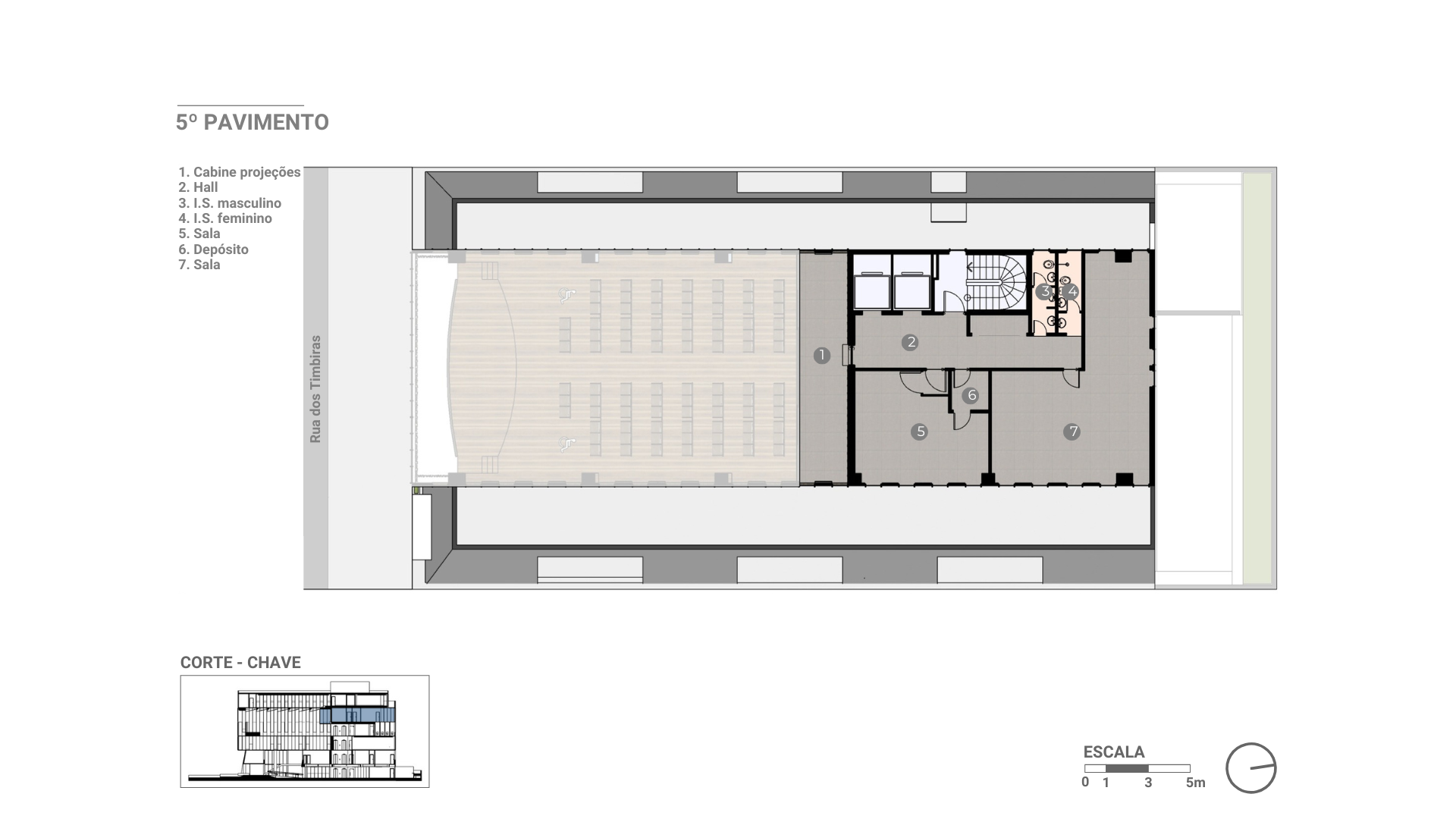
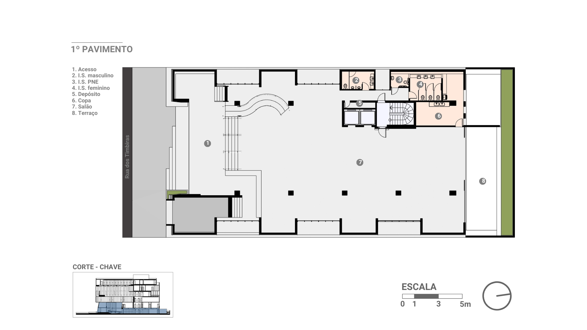
Reorganização da sede SME: adaptação dos espaços para apoiar o Centro de Referência.

Modernização do Estatuto Social: alinhamento com a evolução da entidade e governança moderna.

Implantação de boas práticas de governança: foco em transparência, ética, compliance e agilidade nos processos.